Villa nygård klassisk
ANPASSAT FÖR ETT FLEXIBELT FAMILJELIV
Villa Nygård rymmer fyra till fem sovrum och en planlösning som är anpassad för familjens vardagsliv. Här finns gott om plats för förvaring, stora sällskapsytor och flexibla rum. Skapa en stor altan på baksidan och låt huset växa under sommarhalvåret! Vi har valt att visa hur flexibelt huset är genom att visa Villa Nygård i flera olika stilar. Det moderna huset får ett avskalat intryck, det klassiska ett mer lantligt uttryck med takkupa och snickarglädje, och det skandinaviska mer ladhuskänsla. Med enkla medel byter Nygård karaktär, från klassisk till modern stil eller helt efter dina önskemål.
*Husrenderingar kan innehålla avvikelser från typhus i standardutförande.
HUSFAKTA
Total boarea: 156,2 m2
Antal sovrum: 4-5
Byggnadshöjd: 3,4 m
Nockhöjd: 6,7 m
Byggsatspris: Kontakta lokal agent.
Vad betyder “byggsatspris”?
Vad kostar det att bygga hus?
Nygård i olika stilar
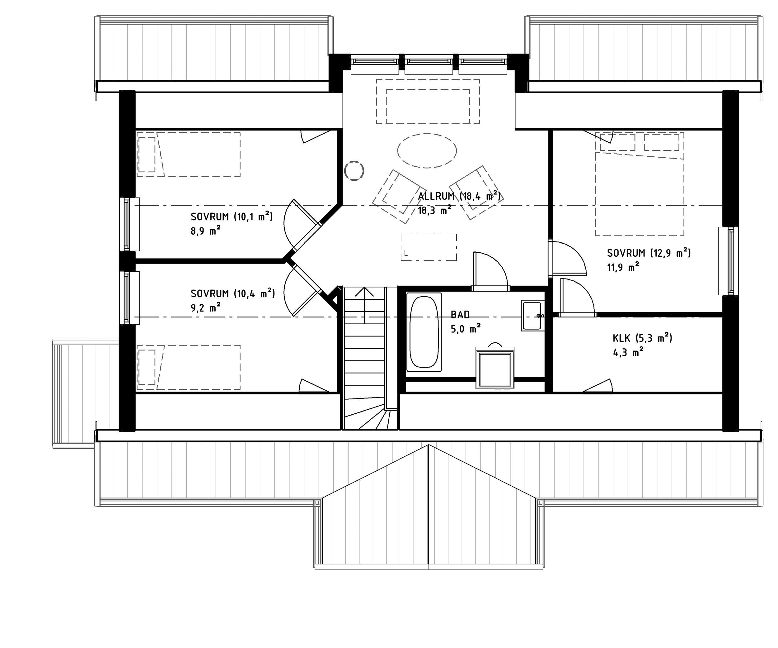
Planlösning
Entréplan Nygård klassisk
Övre plan klassisk

 
                       
             
             
             
             
             
             
             
             
            
          
          
        
        
      
        
        
          
            
               
            
          
          
        
        
      
        
        
          
            
               
            
          
          
        
        
      
        
        
          
            
               
            
          
          
        
        
      
        
        
          
            
               
            
          
          
        
        
      
        
        
          
            
              