Villa Högalid
Villa Högalid är ett stort och praktfullt tvåplanshus i klassisk stil. Mansardtaket för tankarna till gamla tiders flotta herrgårdsbyggnader. Huset har en charmig entréveranda under balkong. Hallen är rymlig och möblerbar. Ytorna är väl tilltagna i alla rum, inte minst i vardagsrummet. Huset har fyra stora sovrum, varav tre ligger på övre plan. Här finns även ett stort allrum, badrum och utgång till balkongen. Högalid är ett av våra Växa-hus, vilket innebär att du kan välja att färdigställa övervåningen i ett senare skede.
Husfakta
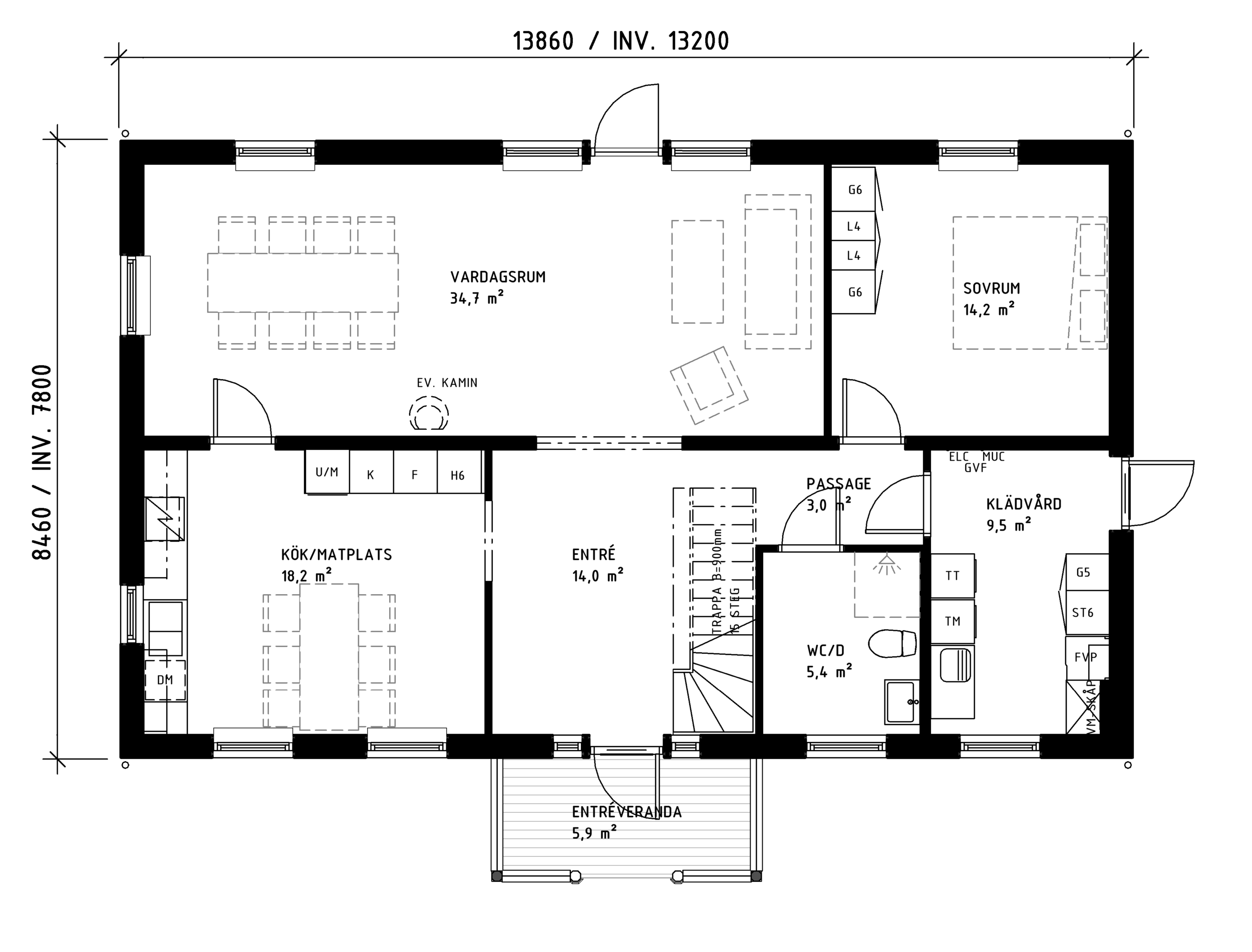
Boarea entréplan: 103 m2
Boarea övre plan: 91,7 m2
Total boarea: 194,7 m2
Byggnadsarea: 123,4 m2
Antal sovrum: 4
Byggnadshöjd: 4,9 m
Nockhöjd: 7,4 m
Byggsatspris från: 2 550 000:-
*Husrenderingar kan innehålla avvikelser från typhus i standardutförande.
Planlösning
Entréplan
Övre plan
Fasader
*Fasadritningar kan innehålla avvikelser från typhus i standardutförande.
3D vy
*3D-vyerna kan innehålla avvikelser från typhus i standardutförande.
Galleri
Vad är det som kostar att bygga hus?
Alla husbyggen är unika. De exakta kostnaderna för ditt husbygge går du igenom tillsammans med din agent. Här ger vi dig exempel på kostnader som kan tillkomma, så att du är väl förberedd.
Vill du veta mer om villa Högalid?
Oavsett var i Sverige du bor och vart i landet du är intresserad av att bygga hus är du varmt välkommen att kontakta agenten i den byggkommun du önskar bygga i.
