Villa Bovik
Kök och sällskapsytor med stort ljusinsläpp
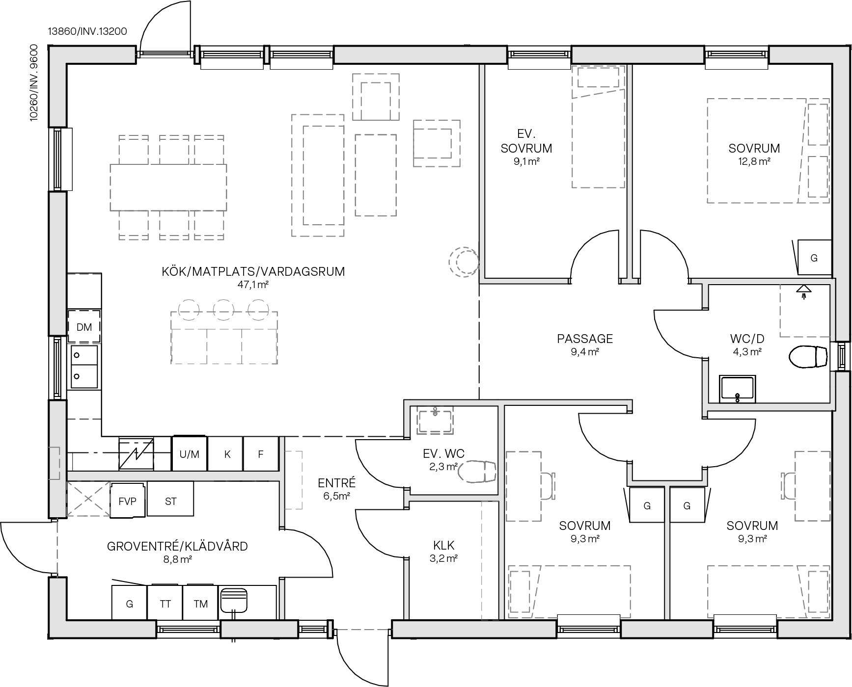
126 välplanerade kvadratmeter
Praktisk groventré
Fönsterdörr från matplats direkt till uteplats
Bovik är ett mindre hus, med plats för många. Planlösningen är genomtänkt. Öppet mellan kök och vardagsrum, fyra sovrum och en smart groventré. I det L-formade köket finns plats för en praktiskt köksö för läxläsning, umgänge och morgonkaffet. Ett av sovrummen kan väljas bort och därmed blir allrummet större. Med enkla medel byter detta hus karaktär, från klassisk till modern stil eller helt efter dina önskemål. Från det öppna vardagsrummet och köket finns en dörr ut till altan/uteplats som under sommarhalvåret blir ett andra vardagsrum. Villa Bovik är ett prisvärt hus för dig som söker en något mindre villa, eller för er som är i startgropen för att bilda familj.
Husfakta
Total boarea: 126,7 m2
Byggnadsarea: 142,2 m2
Antal sovrum: 3-4
Byggnadshöjd: 3,2 m
Nockhöjd: 5,2 m
Byggsatspris från: 1 470 000:-
*Husrenderingar kan innehålla avvikelser från typhus i standardutförande.
Planlösning
Fasader
*Fasadritningar kan innehålla avvikelser från typhus i standardutförande.
3D vy
*3D-vyerna kan innehålla avvikelser från typhus i standardutförande.
Galleri
Vad är det som kostar att bygga hus?
Alla husbyggen är unika. De exakta kostnaderna för ditt husbygge går du igenom tillsammans med din agent. Här ger vi dig exempel på kostnader som kan tillkomma, så att du är väl förberedd.
Vill du veta mer om villa Bovik?
Oavsett var i Sverige du bor och vart i landet du är intresserad av att bygga hus är du varmt välkommen att kontakta agenten i den byggkommun du önskar bygga i.
